Please try to include as much detail as possible.
Are you interested in this property? Contact the landlord here instead.
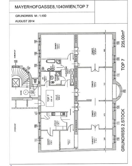
6 Bedrooms
-
Apartment
235 m²
Copied