1220, Wien
7 Ansichten letzte 24 Stunden
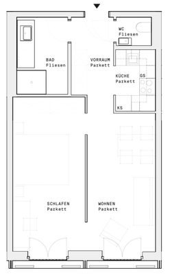
Willkommen in Ihrem neuen urbanen Rückzugsort in 1220, Wien! Diese moderne 2 Schlafzimmer-Wohnung bietet einen stilvollen und gemütlichen Lebensraum. Die offene Raumaufteilung eignet sich perfekt für Gäste, und die elegante Küche ist mit erstklassigen Geräten ausgestattet. Dank der erstklassigen Lage sind Sie nur wenige Schritte von den besten Restaurants, Geschäften und Unterhaltungsmöglichkeiten der Stadt entfernt. Mit einem erschwinglichen Preis von € 722 ist diese Wohnung eine fantastische Gelegenheit, das Leben in der Stadt von seiner besten Seite zu genießen. Verpassen Sie nicht die Gelegenheit - vereinbaren Sie noch heute einen Besichtigungstermin!
Mit einer Premium-Mitgliedschaft erhalten Sie unbegrenzten Zugriff auf alle Details aller Suchergebnisse auf Rentumo. Klicken Sie hier, um sich für Rentumo Premium anzumelden.
Sie suchen vielleicht auf 1-5 Vermietungsportalen. Wir durchsuchen mehr als 350 Vermietungsportale für Sie und das alle auf einem Blick! Wir finden täglich insgesamt über 200 neue Wohnungen auf allen Websites. Sie erhalten jede Stunde eine Benachrichtigung über neue Treffer. Mit Rentumo sparen Sie jeden Tag über 1 Stunde Suchzeit.
Melden Sie sich bei unserem Suchagenten an und lassen Sie sich benachrichtigen, damit Sie als Erster erfahren, wenn neue Häuser auf dem Markt verfügbar sind. Klicken Sie hier, um sich KOSTENLOS anzumelden.
Dieser Eintrag wurde von einer anderen Website kopiert, da wir 300 Websites in Österreich durchsuchen, um alle Einträge in einer praktischen Suche für Sie zusammenzufassen. Mit anderen Worten: Wir erledigen die gesamte Sucharbeit für Sie.
Bestehen Sie immer darauf, Vermieter persönlich zu treffen, bevor Sie eine Kaution hinterlegen. Wenn ein Vermieter eine Kaution verlangt, bevor Sie die Wohnung besichtigt haben, ist das ein Warnsignal. Vergewissern Sie sich, dass Sie einen Besichtigungstermin vereinbaren, sich persönlich treffen und einen unterschriebenen Vertrag erhalten, bevor Sie eine Zahlung leisten.
Wenn die Wohnung bereits vermietet ist, eine falsche Adresse angegeben ist oder das Inserat fehlerhaft erscheint – melden Sie es uns bitte hier.
Wir durchsuchen täglich 251 Mietwebsites und finden dabei Hunderte neuer Angebote, um Sie schnell benachrichtigen zu können.
Sollte ein Problem vorliegen, prüfen wir es umgehend – und Sie könnten gegebenenfalls Anspruch auf eine Rückerstattung haben.
Fehler im Inserat melden.
 
Wien 
  € 800/Monat, min. 2 zimmer