1 Mietwohnung gefunden
Kreuzstetten
Insgesamt entstanden 10 zweigeschossige Reihenhäuser mit ...
Wolkersdorf Im Weinviertel
3 Zimmer wohnung von 84 m² zur Miete in 2120 Wolkersdorf,...
Mistelbach
Diese gut geschnittene 3-Zimmer-Wohnung mit ca. 72,51 m²...
In zentraler Lage von Mistelbach befindet sich diese mode...
Pillichsdorf
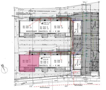
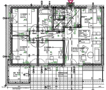
3 Zimmer wohnung von 119 m² zur Miete in 2211 Pillichsdor...
Gaweinstal
Beschreibung: In Atzelsdorf, einer von acht Katastralgem...